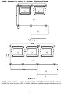
Planul strategic de dezvoltare socio-economic (PSDSE) a satului Lunga pentru anii 2016-2020, componența managementului deșeurilor solide (MDS)